
LA LEHMANN CONSTRUIRÁ SU PROPIO CENTRO DE ALMACENAMIENTO TRANSITORIO DE ENVASES VACÍOS DE FITOSANITARIOS
RedacciónLa Cooperativa Guillermo Lehmann anunció este Viernes 20 de Septiembre, la construcción de su Centro de Almacenamiento Transitorio (CAT) en la localidad de Pilar, sobre la Ruta 10. Este centro estará destinado a la correcta gestión y almacenamiento de envases vacíos de fitosanitarios, brindando un servicio esencial para los productores de la región.
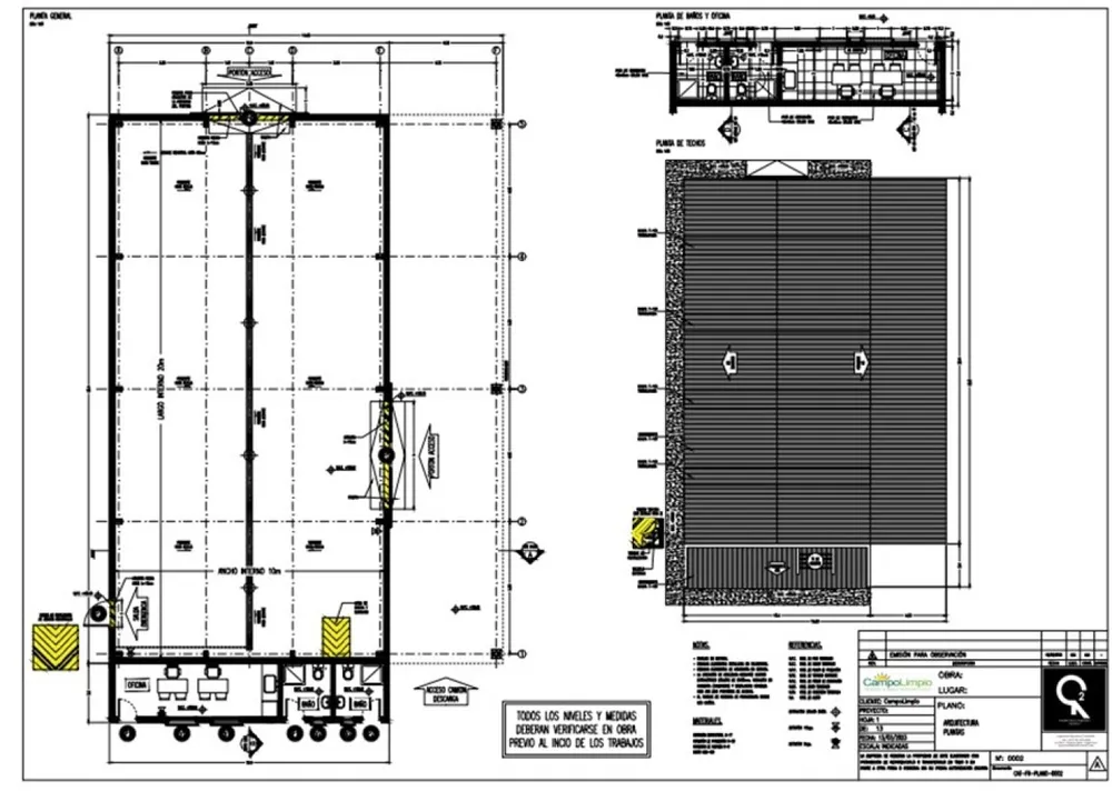
El CAT será un galpón con planta libre de 200 m², sin divisiones interiores, sectorizado con paneles metálicos modulares para organizar y almacenar distintos tipos de envases plásticos (tipos A y B). Además, el proyecto contempla un módulo de administración que incluye oficina, baños y vestuarios para el personal, asegurando el cumplimiento de las normativas sanitarias y de seguridad.
Las instalaciones incluyen medidas de ventilación con rejillas y extractores eólicos para garantizar la renovación de aire, así como dispositivos de seguridad como duchas lavaojos, matafuegos, cartelería de advertencia, y equipos para la manipulación segura de los residuos. También se prevé la posibilidad de instalar paneles solares para la generación de energía y termotanques solares para agua caliente, reafirmando el compromiso de la Lehmann con la sustentabilidad.
Un paso hacia la sostenibilidad
Mauricio Jullier, Coordinador de Higiene y Seguridad de la Cooperativa, destacó la importancia de este proyecto: "Poder concretar y llevar a cabo esta acción realmente nos pone muy contentos y nos llena de orgullo. En primera instancia, porque notamos que el productor tiene la necesidad de disponer adecuadamente estos envases de fitosanitarios, y qué mejor que la Lehmann, dentro de su propuesta de valor, pueda dar este servicio", manifestó.
Jullier también subrayó que esta acción forma parte de un programa de sustentabilidad más amplio, alineado con la visión de la cooperativa de ser líderes regionales, promoviendo la sostenibilidad económica, social y ambiental. Además, enfatizó el beneficio directo para los productores agropecuarios: "El productor podrá entregar sus envases en el CAT y recibir un certificado ambiental que garantice una correcta gestión de los mismos, cumpliendo con la legislación vigente", explicó el colaborador.
Compromiso con el futuro
Este proyecto no solo responde a la necesidad de una gestión eficiente de los residuos fitosanitarios, sino que también asegura que las próximas generaciones puedan disfrutar de un entorno más saludable. Como concluyó Jullier: "De este modo, el productor garantiza la prosperidad del sector agropecuario y que las generaciones venideras puedan disfrutar del mismo ambiente, o incluso en mejores condiciones, que las que tenemos hoy en día", expresó Jullier.
La Cooperativa Guillermo Lehmann reafirma así su compromiso con la sustentabilidad y con el desarrollo agrícola responsable, brindando soluciones concretas que contribuyen al cuidado del medio ambiente y al bienestar de los productores.




Instituciones y comunidad, ejes de una agenda que fortalece el desarrollo local en Ramona y María Juana

“El acceso cercano a las castraciones permite sostener una política sanitaria clave en cada comunidad”





Pilar fortalece vínculos con sus residentes en Santa Fe en el marco de su aniversario

Sunchales convoca a una vigilia para honrar a los Veteranos y Caídos en Malvinas

Colonia Vignaud se prepara para vivir una Semana Santa especial: “Será un encuentro de fe, historia y comunidad”

Instituciones y comunidad, ejes de una agenda que fortalece el desarrollo local en Ramona y María Juana

Ramona fortalece su desarrollo comunitario con acciones en salud, educación, seguridad y participación ciudadana







